Z ciekawym widokiem
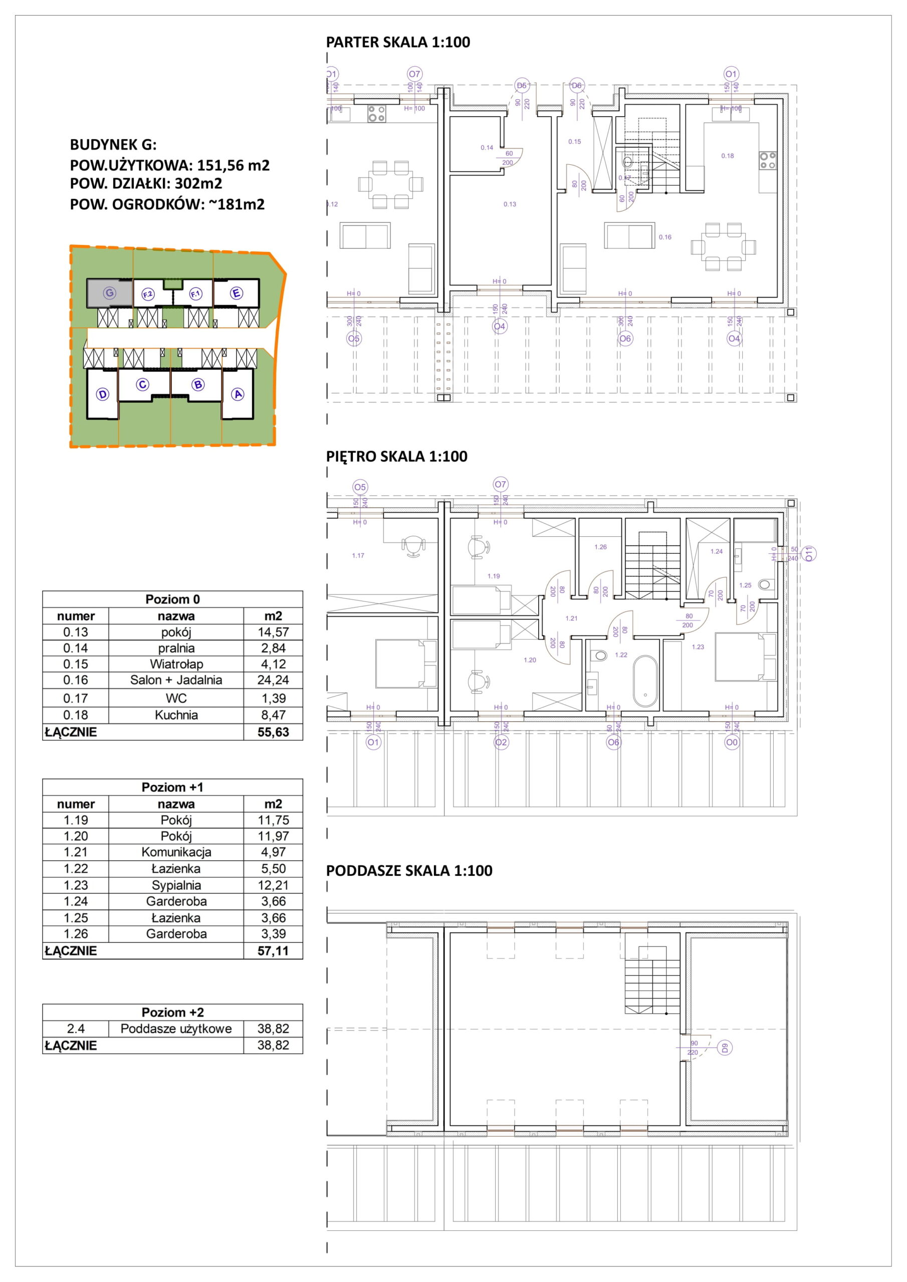
Ostatni z segmentów - Segment G to również narożny segment, który ma doskonały widok na okolicę. Gwarantuje to prywatność i odpowiednie nasłonecznienie. Częściowo zadaszony taras i jego zachodnia ekspozycja sprawią, że będzie to doskonałe miejsce do opalania. Będzie to doskonała alternatywa dla tych, którzy chcą mieć segment skrajny ale nie potrzebują aż tak dużego metrażu jak przy segmentach po lewej stronie osiedla.SPRAWDŹ ASPEKTY TECHNICZNE
Nasze segmenty budujemy z należytą starannością i odpowiednią dbałością o detale. W celu poznania szczegółów związanych z budynkiem możesz dowiedzieć się więcej poniżej.KONSTRUKCJA BUDYNKU
- Ławy fundamentowe budynku z betonu C20/25, zbrojone ze stali A-IIIN (RB500W, B500SP),
- Ściany fundamentowe z bloczków betonowych,
- Wypełnienie i zagęszczenie mechaniczne fundamentów podsypką żwirowo piaskową,
- Kanalizacja w warstwie podsypki,
- Beton C12/15, folia 0,3 mm
- Ściany nośne konstrukcyjne wykonane z pustaków ceramicznych Porotherm dryfix
- Ściany działowe wewnętrzne Porotherm dryfix
- Strop żelbetowy nad parterem i nad 1 piętrem
- Schody monolityczne - żelbetowe,
- Więźba dachowa – dach jętkowy oparty na murłatach
- Dach z blachodachówki modułowej TREND 30 [35] MAT
- Okna trzyszybowe marki PETECKI na profilu Salamander
IZOLACJE I OCIEPLENIA
- Izolacja przeciwwilgociowa pionowa ściany fundamentowej - powłoka uszczelniająca systemowa
- Izolacja pozioma ław fundamentowych – papa Izolbet
- Izolacja pionowa termiczna -styropian AQUA EPS 100, grubości 10 cm
- Izolacja przeciwwilgociowa pionowa – masa Dysperbit + folia kubełkowa
- Izolacja przeciwwilgociowa pozioma ścian – folia PE fundamentowa ,
- Ocieplenie ścian nośnych budynku mieszkalnego styropianem EPS o grubości 15cm,
- Izolacja termiczna i akustyczna pomiędzy ścianami wspólnymi segmentów:styropian gr.2cm
- Poddasze ocieplone pianą + płyta kartonowo gipsowych
- Izolacja pokrycia dachowego - membrana wysoko paroprzepuszczalna.
INSTALACJE
● Instalacja CO i wodna parteru, pierwszego i drugiego piętra
● Gniazdo siłowe w garażu i do płyty indukcyjnej w kuchni,
● Pompa ciepła ciepła Hisense - 8KW AHW-080HCDS1
● Ogrzewanie podłogowe
● Instalacja elektryczna na parterze i piętrze bez kontaktów i gniazdek obejmująca, punktów alarmu, punktów internetowych, punktów antenowych, punkt podłączenia videofonu, oraz wyprowadzony peszel do fotowoltaiki,
● Rekuperacja + jednostka wentylacyjna
TYNKI I ELEWACJE
● Tynki wewnętrzne gipsowe
● Elewacja budynku , tynk silikatowo – silikonowy
● Parapety – blacha stalowa
● Rynny i rury spustowe plastikowe (PVC)
OTOCZENIE
● Ogrodzenie systemowe panelowe wraz ze słupkami (brama wjazdowa i furtka wspólna dla osiedla)
● Uporządkowanie terenu budowy po zakończeniu prac wraz z posianiem trawy,
● Wykonanie podjazdu do garażu z kostki,
● Ułożenie kostki brukowej w strefie dojścia do budynku,
● Wykonanie bramy wjazdowej wraz z napędem,
● Wykonanie instalacji domofonowej,
● Przyłączenie wody, prądu, odprowadzenia ścieków zgodnie z zatwierdzoną dokumentacją,
● Zbiorniki retencyjne na wodę deszczową,
● Odbiór techniczny budynku i zawiadomienie o zakończeniu.
Więcej dokumentów dotyczących tego segmentu oraz pozostałych znajdziesz TUTAJ

Deweloper
Zen Development sp. z o.o.
NIP:5252862956 REGON: 388982502
ul. Ryżowa 43D /26, Warszawa
Kod pocztowy: 02-495, Warszawa
Biuro nieruchomości
Wymarzony Kwadrat
I od razu uspokajamy ... NIE PŁACISZ PROWIZJI
Nasi agenci nieruchomości:
Telefon: 511 388 004
Telefon: 511 388 223
Małgorzata Gruca-Bobińska
malgorzata-gruca@o2.pl
telefon: 501 305 788