Większy segment środkowy
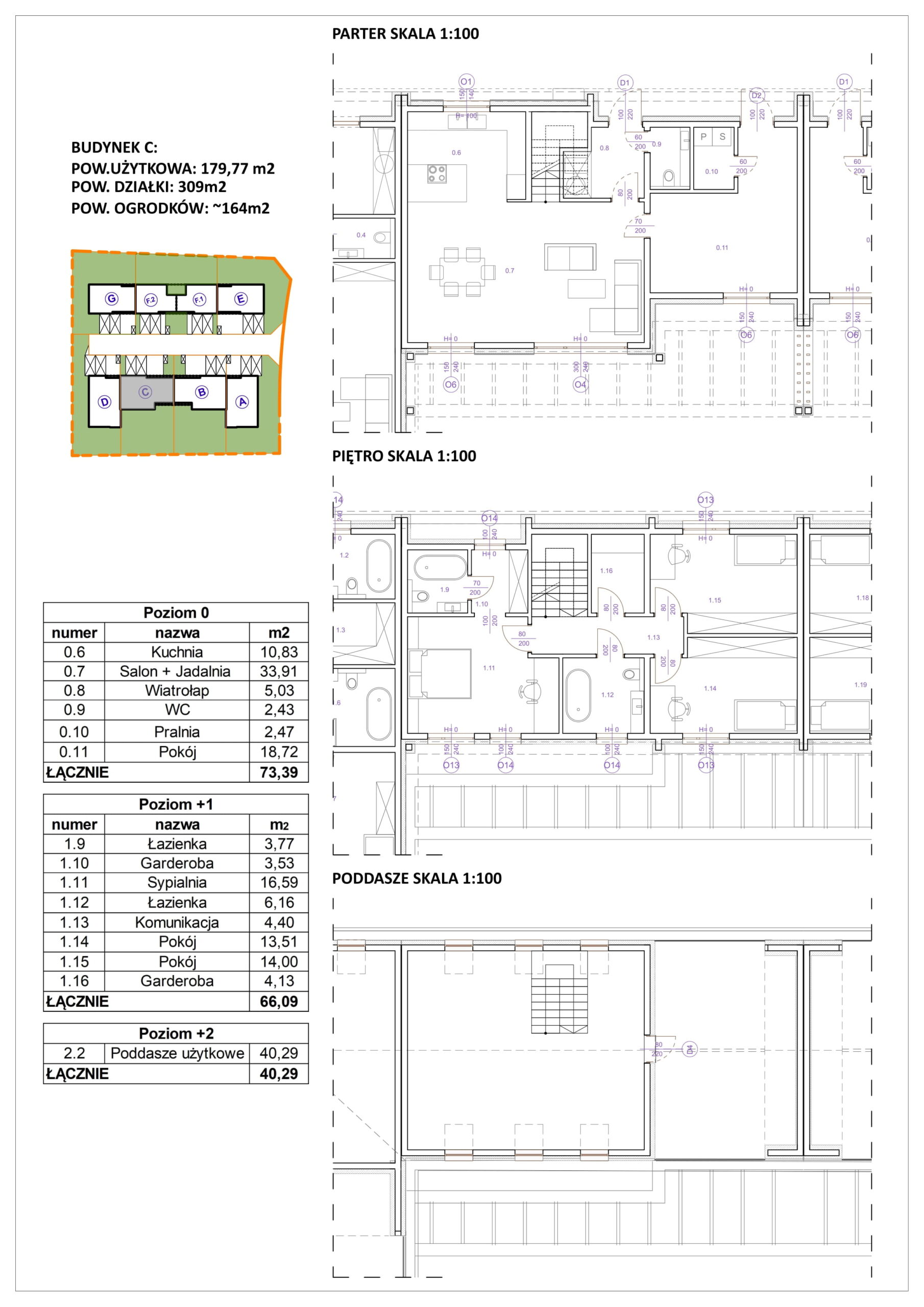
Segment C jest nieznacznie większy od segmentu B. Na pierwszy rzut oka różnica ta jest niezauważalna. Warto jednak zwrócić uwagę! Różnica wynika z nieznacznie większych wielkości pomieszczeń. Z naszego doświadczenia wynika, że jest to naprawdę istotny aspekt. Również bogata w wysokie drzewa działka sprawia, że klimat tego segmentu jest naprawdę niezapomniany.SPRAWDŹ ASPEKTY TECHNICZNE
Nasze segmenty budujemy z należytą starannością i odpowiednią dbałością o detale. W celu poznania szczegółów związanych z budynkiem możesz dowiedzieć się więcej poniżej.KONSTRUKCJA BUDYNKU
- Ławy fundamentowe budynku z betonu C20/25, zbrojone ze stali A-IIIN (RB500W, B500SP),
- Ściany fundamentowe z bloczków betonowych,
- Wypełnienie i zagęszczenie mechaniczne fundamentów podsypką żwirowo piaskową,
- Kanalizacja w warstwie podsypki,
- Beton C12/15, folia 0,3 mm
- Ściany nośne konstrukcyjne wykonane z pustaków ceramicznych Porotherm dryfix
- Ściany działowe wewnętrzne Porotherm dryfix
- Strop żelbetowy nad parterem i nad 1 piętrem
- Schody monolityczne - żelbetowe,
- Więźba dachowa – dach jętkowy oparty na murłatach
- Dach z blachodachówki modułowej TREND 30 [35] MAT
- Okna trzyszybowe marki PETECKI na profilu Salamander
IZOLACJE I OCIEPLENIA
- Izolacja przeciwwilgociowa pionowa ściany fundamentowej - powłoka uszczelniająca systemowa
- Izolacja pozioma ław fundamentowych – papa Izolbet
- Izolacja pionowa termiczna -styropian AQUA EPS 100, grubości 10 cm
- Izolacja przeciwwilgociowa pionowa – masa Dysperbit + folia kubełkowa
- Izolacja przeciwwilgociowa pozioma ścian – folia PE fundamentowa ,
- Ocieplenie ścian nośnych budynku mieszkalnego styropianem EPS o grubości 15cm,
- Izolacja termiczna i akustyczna pomiędzy ścianami wspólnymi segmentów:styropian gr.2cm
- Poddasze ocieplone pianą + płyta kartonowo gipsowych
- Izolacja pokrycia dachowego - membrana wysoko paroprzepuszczalna.
INSTALACJE
● Instalacja CO i wodna parteru, pierwszego i drugiego piętra
● Gniazdo siłowe w garażu i do płyty indukcyjnej w kuchni,
● Pompa ciepła ciepła Hisense - 8KW AHW-080HCDS1
● Ogrzewanie podłogowe
● Instalacja elektryczna na parterze i piętrze bez kontaktów i gniazdek obejmująca, punktów alarmu, punktów internetowych, punktów antenowych, punkt podłączenia videofonu, oraz wyprowadzony peszel do fotowoltaiki,
● Rekuperacja + jednostka wentylacyjna
TYNKI I ELEWACJE
● Tynki wewnętrzne gipsowe
● Elewacja budynku , tynk silikatowo – silikonowy
● Parapety – blacha stalowa
● Rynny i rury spustowe plastikowe (PVC)
OTOCZENIE
● Ogrodzenie systemowe panelowe wraz ze słupkami (brama wjazdowa i furtka wspólna dla osiedla)
● Uporządkowanie terenu budowy po zakończeniu prac wraz z posianiem trawy,
● Wykonanie podjazdu do garażu z kostki,
● Ułożenie kostki brukowej w strefie dojścia do budynku,
● Wykonanie bramy wjazdowej wraz z napędem,
● Wykonanie instalacji domofonowej,
● Przyłączenie wody, prądu, odprowadzenia ścieków zgodnie z zatwierdzoną dokumentacją,
● Zbiorniki retencyjne na wodę deszczową,
● Odbiór techniczny budynku i zawiadomienie o zakończeniu.
Więcej dokumentów dotyczących tego segmentu oraz pozostałych znajdziesz TUTAJ

Deweloper
Zen Development sp. z o.o.
NIP:5252862956 REGON: 388982502
ul. Ryżowa 43D /26, Warszawa
Kod pocztowy: 02-495, Warszawa
Biuro nieruchomości
Wymarzony Kwadrat
I od razu uspokajamy ... NIE PŁACISZ PROWIZJI
Nasi agenci nieruchomości:
Telefon: 511 388 004
Telefon: 511 388 223
Małgorzata Gruca-Bobińska
malgorzata-gruca@o2.pl
telefon: 501 305 788